Courtesy Of Ryan B Debler Of Sotheby's International Realty Canada.
502 10143 Clifton Place Northwest. Edmonton, AB T5H 0E7
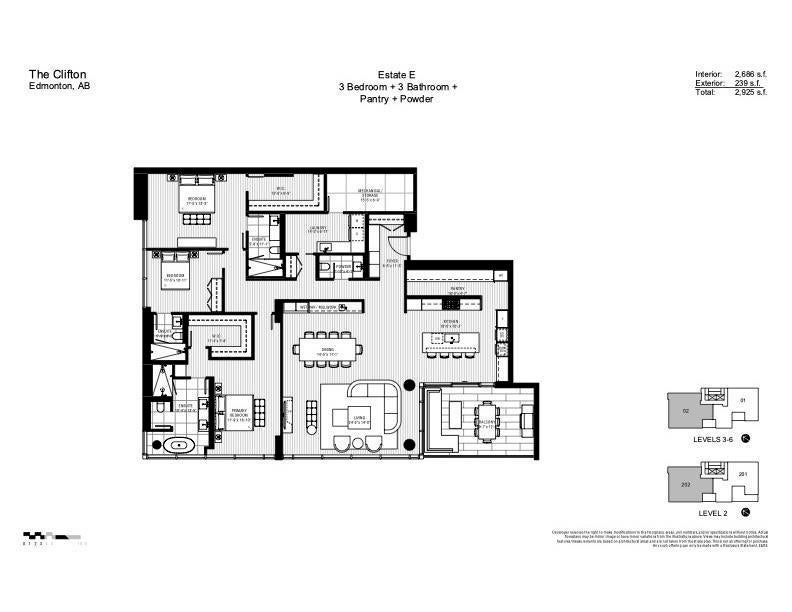
MLS® E4461238 is as 2,686sqft High Rise Apartment located at 502 10143 Clifton Place Northwest, in Edmonton AB. The property features 3 bedrooms, and 3.5 bathrooms.
Description
Perfectly set between elegant Old Glenora and High Street, The Clifton promises the very best our city has to offer. Imagined by Autograph and designed by McKinley, The Clifton provides 12 floors of expansive estates, rich interiors, and spectacular panoramic views. A symbol of exceptional design and extraordinary living through its craft, timeless architecture and landmark location. The statuesque modern silhouette is home to a small community of estates featuring unobstructed views of the River Valley. With a purposely designed street-facing façade, discreet entrance, and private concierge service, The Clifton offers seclusion and intimacy second to none. Estate E comprises nearly 2700sqft of the finest craftsmanship. This three bedroom residence commands half of the 5th floor and offers unobstructed views through its floor to ceiling windows. Owners are presented with the opportunity to put their custom stamp on their residence by selecting their interior finishings. Welcome Home.
502 10143 Clifton Place Northwest - Subdivision Statistics
| Avg. asking price | N/A |
| Price per sq. ft. | N/A |
| Median price | N/A |
| Number of homes for sale in Westmount | N/A |
| Number of homes for sale in Edmonton | N/A |
| Avg. Days on Market | N/A |
Essential Information
- MLS® #E4461238
- Price$4,675,000
- Bedrooms3
- Full Baths3
- Half Baths1
- Square Footage2,686
- Acres0.00
- Year Built2025
- TypeCondo / Townhouse
- Sub-TypeApartment High Rise
- StyleSingle Level Apartment
- StatusActive
- Condo Fee2203
Address
502 10143 Clifton Place Northwest
Amenities
Air Conditioner, Barbecue-Built-In, Closet Organizers, Deck, Exercise Room, Guest Suite, Party Room, Patio, Secured Parking, Security Door, Social Rooms, Concierge Service, Storage Cage
Appliances
Air Conditioning-Central, Dishwasher-Built-In, Dryer, Hood Fan, Oven-Microwave, Refrigerator, Stove-Gas, Washer, Window Coverings, Wine/Beverage Cooler
Exterior
- RoofClay Tile
- ConstructionConcrete, Stone
- FoundationConcrete Perimeter
Community Information
- AreaEdmonton
- SubdivisionWestmount
- CityEdmonton
- ProvinceAB
- Postal CodeT5H 0E7
Amenities
- ParkingHeated, Underground
Interior
- Interior Featuresensuite bathroom
- Has BasementYes
- BasementNone,No Basement
- Basement TypeNone, No Basement
- FireplaceYes
- FireplacesGlass Door
- # of Stories12
- Stories1
Heating
Forced Air-1, Heat Pump, Natural Gas
Exterior Features
Backs Onto Park/Trees, Cul-De-Sac, Hillside, No Through Road, Private Setting, Ravine View, River Valley View, River View, Shopping Nearby, View City, View Downtown, See Remarks
Additional Information
- Condo Fee$2,203
- ZoningZone 07
Listing information last updated on February 13th, 2026 at 7:17am MST.














